Посмотреть на карте

Офис Whitewill:

Каменноостровский проспект 56 к2
17/33
Премиальные резиденции для роскошной жизни на Петровском острове
от 21 м²
площадь квартиры
от 18 730 000 ₽
цена квартиры
Презентация комплекса
Внутри — расположение комплекса, архитектура и инфраструктура
PDF 15.59 MB.
Время скачивания файла - 7 секунд
Презентация комплекса
Внутри — расположение комплекса, архитектура и инфраструктура
← Можно пролистнуть →

О проекте

Рассказывают брокеры
Роскошный стиль жизни
«17/33» — премиальный комплекс апартаментов на Петровском острове, между Малой Невой и Петровским прудом. Архитектура от бюро «А.Лен», интерьеры от Woodstone, сервис от HOST by MOSS от MOSS Hospitality. Закрытая территория, клубные пространства, вдохновляющие виды и абсолютная приватность.
Expert 1
Иван
Партнёр компании
В эпицентре красивой жизни
Резиденции «17/33» находятся в престижной и тихой части Петербурга — между Петроградской стороной, Васильевским и Крестовским островами. Всего 7 минут пешком до метро «Спортивная», на машине 10 — до Невского проспекта, 15 — до выезда на ЗСД. Рядом — парки, рестораны и важные городские локации.
Expert 2
Елена
Партнёр компании
Современная классика Петербурга на Петровском острове
Архитектура «17/33» подчёркивает масштаб и ритм города: восемь секций выстроены вдоль берега Малой Невы, фасады тянутся горизонталями, отражая воду, свет и северные закаты. Композиция точно вписана в ткань острова и становится её акцентом.
Expert 3
Екатерина
Партнёр компании
Три пространства для жизни
CLUB — апартаменты с отельным сервисом, интерьеры Oleg Klodt, управление HOST by MOSS. LIFE — центральная часть комплекса с фитнесом, спа, лаунжами, коворкингом и «Небесной гостиной» на крыше. RESIDENCE — резиденции с уникальными планировками, приватной территорией, собственным лобби и премиальным сервисом.
Expert 4
Владимир
Партнёр компании

Отделка 

В комплексе представлены апартаменты с премиальной отделкой в трёх авторских стилях.
Интерьеры CLUB от бюро Oleg Klodt
Decoration
Decoration - 0
Decoration - 1
Decoration - 2
Decoration - 3
Decoration - 4
Пространства LIFE от студии Woodstone
Decoration
Decoration - 0
Decoration - 1
Decoration - 2
Decoration - 3
Decoration - 4
Decoration - 5
Decoration - 6
Decoration - 7
Decoration - 8
Decoration - 9
Лобби и гостиные с мрамором Breccia Medicea
Decoration
Decoration - 0
Decoration - 1
Decoration - 2
Decoration - 3
Decoration - 4

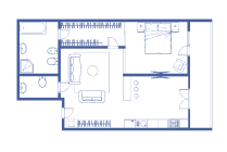
Планировки и цены квартир и апартаментов в ЖК «17/33»

Вы можете выбрать, забронировать и купить квартиру в жилом комплексе «17/33» в нашем разделе с планировками и ценами.
от 18 730 000 ₽
от 892 000 ₽ за м2
от 21 м2
Это типовая планировка, а не квартира. Альбом со всеми планировками можно скачать на сайте. Посмотреть все лоты можно переключив фильтр справа.
от 29 180 000 ₽
от 941 000 ₽ за м2
от 31 м2
Это типовая планировка, а не квартира. Альбом со всеми планировками можно скачать на сайте. Посмотреть все лоты можно переключив фильтр справа.
от 20 780 000 ₽
от 742 000 ₽ за м2
от 28 м2
Это типовая планировка, а не квартира. Альбом со всеми планировками можно скачать на сайте. Посмотреть все лоты можно переключив фильтр справа.
от 120 520 000 ₽
от 2 150 000 ₽ за м2
от 56 м2
Это типовая планировка, а не квартира. Альбом со всеми планировками можно скачать на сайте. Посмотреть все лоты можно переключив фильтр справа.
от 30 630 000 ₽
от 875 000 ₽ за м2
от 35 м2
Это типовая планировка, а не квартира. Альбом со всеми планировками можно скачать на сайте. Посмотреть все лоты можно переключив фильтр справа.
от 23 460 000 ₽
от 838 000 ₽ за м2
от 28 м2
Это типовая планировка, а не квартира. Альбом со всеми планировками можно скачать на сайте. Посмотреть все лоты можно переключив фильтр справа.
от 43 210 000 ₽
от 919 000 ₽ за м2
от 47 м2
Это типовая планировка, а не квартира. Альбом со всеми планировками можно скачать на сайте. Посмотреть все лоты можно переключив фильтр справа.
от 35 170 000 ₽
от 818 000 ₽ за м2
от 43 м2
Это типовая планировка, а не квартира. Альбом со всеми планировками можно скачать на сайте. Посмотреть все лоты можно переключив фильтр справа.
от 189 580 000 ₽
от 1 660 000 ₽ за м2
от 114 м2
Это типовая планировка, а не квартира. Альбом со всеми планировками можно скачать на сайте. Посмотреть все лоты можно переключив фильтр справа.
от 70 270 000 ₽
от 1 350 000 ₽ за м2
от 52 м2
Это типовая планировка, а не квартира. Альбом со всеми планировками можно скачать на сайте. Посмотреть все лоты можно переключив фильтр справа.
от 61 710 000 ₽
от 1 010 000 ₽ за м2
от 61 м2
Это типовая планировка, а не квартира. Альбом со всеми планировками можно скачать на сайте. Посмотреть все лоты можно переключив фильтр справа.
от 213 800 000 ₽
от 1 890 000 ₽ за м2
от 113 м2
Это типовая планировка, а не квартира. Альбом со всеми планировками можно скачать на сайте. Посмотреть все лоты можно переключив фильтр справа.
от 60 640 000 ₽
от 919 000 ₽ за м2
от 66 м2
Это типовая планировка, а не квартира. Альбом со всеми планировками можно скачать на сайте. Посмотреть все лоты можно переключив фильтр справа.
от 62 050 000 ₽
от 912 000 ₽ за м2
от 68 м2
Это типовая планировка, а не квартира. Альбом со всеми планировками можно скачать на сайте. Посмотреть все лоты можно переключив фильтр справа.
от 56 250 000 ₽
от 970 000 ₽ за м2
от 58 м2
Это типовая планировка, а не квартира. Альбом со всеми планировками можно скачать на сайте. Посмотреть все лоты можно переключив фильтр справа.
от 95 150 000 ₽
от 1 170 000 ₽ за м2
от 81 м2
Это типовая планировка, а не квартира. Альбом со всеми планировками можно скачать на сайте. Посмотреть все лоты можно переключив фильтр справа.
от 150 320 000 ₽
от 1 390 000 ₽ за м2
от 108 м2
Это типовая планировка, а не квартира. Альбом со всеми планировками можно скачать на сайте. Посмотреть все лоты можно переключив фильтр справа.
от 292 080 000 ₽
от 1 780 000 ₽ за м2
от 164 м2
Это типовая планировка, а не квартира. Альбом со всеми планировками можно скачать на сайте. Посмотреть все лоты можно переключив фильтр справа.
от 269 590 000 ₽
от 1 810 000 ₽ за м2
от 149 м2
Это типовая планировка, а не квартира. Альбом со всеми планировками можно скачать на сайте. Посмотреть все лоты можно переключив фильтр справа.
от 128 300 000 ₽
от 1 230 000 ₽ за м2
от 104 м2
Это типовая планировка, а не квартира. Альбом со всеми планировками можно скачать на сайте. Посмотреть все лоты можно переключив фильтр справа.
от 65 860 000 ₽
от 878 000 ₽ за м2
от 75 м2
Это типовая планировка, а не квартира. Альбом со всеми планировками можно скачать на сайте. Посмотреть все лоты можно переключив фильтр справа.
от 69 200 000 ₽
от 935 000 ₽ за м2
от 74 м2
Это типовая планировка, а не квартира. Альбом со всеми планировками можно скачать на сайте. Посмотреть все лоты можно переключив фильтр справа.
от 80 890 000 ₽
от 1 120 000 ₽ за м2
от 72 м2
Это типовая планировка, а не квартира. Альбом со всеми планировками можно скачать на сайте. Посмотреть все лоты можно переключив фильтр справа.
от 359 310 000 ₽
от 2 110 000 ₽ за м2
от 170 м2
Это типовая планировка, а не квартира. Альбом со всеми планировками можно скачать на сайте. Посмотреть все лоты можно переключив фильтр справа.
от 175 040 000 ₽
от 1 510 000 ₽ за м2
от 116 м2
Это типовая планировка, а не квартира. Альбом со всеми планировками можно скачать на сайте. Посмотреть все лоты можно переключив фильтр справа.
от 113 760 000 ₽
от 1 170 000 ₽ за м2
от 97 м2
Это типовая планировка, а не квартира. Альбом со всеми планировками можно скачать на сайте. Посмотреть все лоты можно переключив фильтр справа.
от 224 240 000 ₽
от 1 030 000 ₽ за м2
от 218 м2
Это типовая планировка, а не квартира. Альбом со всеми планировками можно скачать на сайте. Посмотреть все лоты можно переключив фильтр справа.
от 200 820 000 ₽
от 1 390 000 ₽ за м2
от 144 м2
Это типовая планировка, а не квартира. Альбом со всеми планировками можно скачать на сайте. Посмотреть все лоты можно переключив фильтр справа.
от 3 367 480 000 ₽
от 3 360 000 ₽ за м2
от 1001 м2
Это типовая планировка, а не квартира. Альбом со всеми планировками можно скачать на сайте. Посмотреть все лоты можно переключив фильтр справа.
от 1 277 140 000 ₽
от 2 230 000 ₽ за м2
от 573 м2
Это типовая планировка, а не квартира. Альбом со всеми планировками можно скачать на сайте. Посмотреть все лоты можно переключив фильтр справа.
от 506 100 000 ₽
от 1 230 000 ₽ за м2
от 413 м2
Это типовая планировка, а не квартира. Альбом со всеми планировками можно скачать на сайте. Посмотреть все лоты можно переключив фильтр справа.
от 1 218 660 000 ₽
от 2 660 000 ₽ за м2
от 459 м2
Это типовая планировка, а не квартира. Альбом со всеми планировками можно скачать на сайте. Посмотреть все лоты можно переключив фильтр справа.
от 403 900 000 ₽
от 1 490 000 ₽ за м2
от 271 м2
Это типовая планировка, а не квартира. Альбом со всеми планировками можно скачать на сайте. Посмотреть все лоты можно переключив фильтр справа.
от 311 450 000 ₽
от 1 730 000 ₽ за м2
от 180 м2
Это типовая планировка, а не квартира. Альбом со всеми планировками можно скачать на сайте. Посмотреть все лоты можно переключив фильтр справа.
С Студия
1 спальня
2 спальни
3 спальни
4+ спальни
Другие варианты планировок:
22
4
11
1
12
6
6
12
1
1
1
5
5
3
2
2
1
1
1
1
1
1
1
1
3
3
4
1
1
2
2
1
1
1
Стоимость
$ £
Стоимость
$ £
Площадь
м²
Площадь
м²
С
Добавить к выбору
Студия
1
Добавить к выбору
спальня
2
Добавить к выбору
спальни
3
Добавить к выбору
спальни
4+
Добавить к выбору
спальни
Сначала дешевле
Дополнительные опции
plan-lot-156189
Квартира
18 730 000 ₽ 0 ₽ в месяц
Без отделки
21 м²
Лот #313845
plan-lot-156213
Квартира
19 140 000 ₽ 0 ₽ в месяц
Без отделки
22 м²
Лот #313860
plan-lot-156249
Квартира
19 500 000 ₽ 0 ₽ в месяц
Без отделки
24 м²
Лот #313874
plan-lot-156187
Квартира
19 570 000 ₽ 0 ₽ в месяц
Без отделки
21 м²
Лот #313849
plan-lot-156171
Квартира
19 570 000 ₽ 0 ₽ в месяц
Без отделки
21 м²
Лот #313851
plan-lot-156219
Квартира
19 640 000 ₽ 0 ₽ в месяц
Без отделки
22 м²
Лот #313863

Планировки в комплексе «17/33»

Спальни Цена Цена за м² Площадь
Студия от 18 730 000 ₽ от 892 000 ₽ /м² от 21 м²
1 спальня от 23 460 000 ₽ от 838 000 ₽ /м² от 28 м²
2 спальни от 56 250 000 ₽ от 970 000 ₽ /м² от 58 м²
3 спальни от 113 760 000 ₽ от 1 170 000 ₽ /м² от 97 м²
4+ спален от 184 140 000 ₽ от 1 140 000 ₽ /м² от 161 м²

Генплан жилого комплекса «17/33»

Нажмите на иконку, чтобы получить полную информацию об объекте инфраструктуры.
general-plan
light
light
light
light
lamp

Презентация
комплекса «17/33»

Расположение, архитектура и инфраструктура премиальных резиденций «17/33» в нашей pdf-презентации.
Каталог

Расположение ЖК «17/33»

«17/33» расположен по адресу Санкт-Петербург, Ремесленная улица, 17. Запишитесь на экскурсию через официальный сайт продаж.
Спортивная, 17 минут

Места поблизости комплекса «17/33»

«17/33» окружён водой и зеленью: с одной стороны — Петровский пруд, с другой — Малая Нева. Рядом парки, набережные, уютные скверы, Крестовский остров и рестораны Петроградской стороны.
Петровский парк и пруд
3 минуты
1 минута
Петровский парк и пруд
Стадион «Петровский»
12 минут
2 минуты
Стадион «Петровский»
Спортивный комплекс «Юбилейный»
19 минут
5 минут
Спортивный комплекс «Юбилейный»
Центральный Яхт-клуб
25 минут
7 минут
Центральный Яхт-клуб
Петропавловская крепость
34 минуты
5 минут
Петропавловская крепость
Приморский парк Победы
34 минуты
8 минут
Приморский парк Победы
Стрелка Васильевского острова
34 минуты
6 минут
Стрелка Васильевского острова
Продайте свою квартиру в «17/33»
Укажите свои контакты и наш менеджер свяжется с вами, чтобы помочь выгодно продать вашу квартиру.
Продать квартиру
Егор
plan
plan2
Егор, Партнёр компании

Застройщик

Element Development работает на рынке с 2021 года и уже завоевал 13 профессиональных наград. Команда с более чем 15-летним 
опытом создаёт выразительные проекты бизнес- и премиум-класса, внедряя передовые технологии и продолжая архитектурные традиции Петербурга.
Башни Элемент
Шепилевский
1919
Bereg.Курортный
Новая, 11
Тессинский 5
Посмотреть еще 2 проекта

Доступная ипотека

Подайте заявку на ипотеку и получите решение сразу из нескольких банков-партнёров.
Дистанционно одобрим ипотеку
Ставка от 21,9%
Решение за 72 часа
Ответ из нескольких банков
Решение в трудных ситуациях
Одобрить ипотеку
andrew
Анастасия
Ипотечный брокер
Рассрочка
Застройщик «17/33», Element Development, предлагает оформить рассрочку на 12 месяцев с первоначальным взносом 30 или 50%.
Елена, Партнёр компании

Частые Вопросы

Какие преимущества расположения ЖК «17/33» на Петровском острове?

Жилой комплекс «17/33» расположен на Петровском острове, между Малой Невой и Петровским прудом. До исторического центра Петербурга — 10 минут, рядом парки, рестораны, ЗСД и метро «Спортивная».

Что входит в инфраструктуру комплекса «17/33» на Ремесленной, 17?

Комплекс «17/33» объединяет апартаменты, сити-виллы и резиденции. На территории: фитнес, спа, детский клуб, коворкинг, «Небесная гостиная», набережная, причал, беседки, зоны отдыха и парадные дворы.

Есть ли в комплексе «17/33» сервис и охрана?

Да, в проекте предусмотрен премиальный консьерж-сервис от Moss Hospitality (HOST by MOSS), охрана, видеонаблюдение, тревожные кнопки, контроль доступа, ресепшн и единый ключ ко всем помещениям.

Какие типы недвижимости есть в апарт-комплексе «17/33»?

В продаже апартаменты, сити-виллы с садами, пентхаусы и резиденции с индивидуальными лифтами. Пространства CLUB, LIFE и RESIDENCE оформлены по индивидуальным дизайн-проектам с отделкой и инфраструктурой.

Когда сдаётся комплекс «17/33» на Петровском острове?

Сдача проекта запланирована на 2026 год. Продажи уже открыты — можно забронировать апартаменты с отделкой, подключением к сервису и доступом ко всем общественным пространствам.

Где посмотреть на карте и как попасть в ЖК «17/33»?

Комплекс находится по адресу: Санкт-Петербург, Петровский остров, Ремесленная улица, дом 17, литера З.
Запишитесь на просмотр
Укажите свои контакты и менеджер свяжется с вами, чтобы уточнить удобное время просмотра
Записаться на сайте Записаться в WhatsApp Записаться в Telegram Записаться в Max